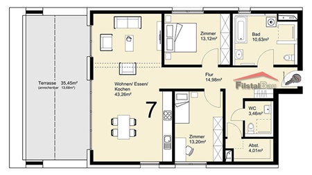
| Wohnen / Essen / Kochen | 44,00 m² |
| Schlafen | 13,12 m² |
| Zimmer 1 | 13,20 m² |
| Bad | 11,23 m² |
| WC | 2,50 m² |
| Abstellraum | 3,06 m² |
| Flur | 17,15 m² |
| Gesamtwohnfläche | 104,26 m² |
| Wohnen / Essen / Kochen | 44,00 m² |
| Schlafen | 13,12 m² |
| Zimmer 1 | 13,20 m² |
| Bad | 11,23 m² |
| WC | 2,50 m² |
| Abstellraum | 3,06 m² |
| Flur | 17,15 m² |
| Gesamtwohnfläche | 104,26 m² |