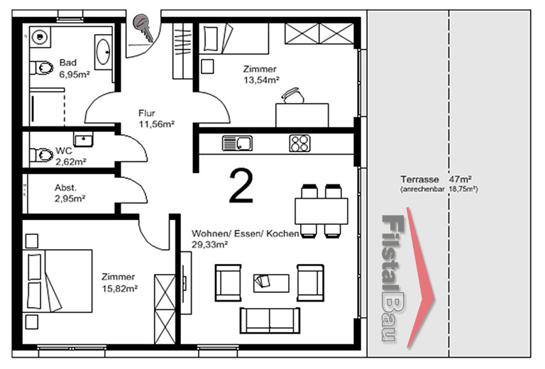
| Wohnen / Essen / Kochen | 29,33 m² |
| Schlafen | 15,82 m² |
| Zimmer | 13,54 m² |
| Bad | 6,95 m² |
| WC | 2,62 m² |
| Abstellraum | 2,95 m² |
| Flur | 11,56 m² |
| Gesamtwohnfläche | 82,77 m² |
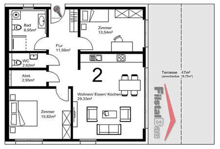
| Wohnen / Essen / Kochen | 29,33 m² |
| Schlafen | 15,82 m² |
| Zimmer | 13,54 m² |
| Bad | 6,95 m² |
| WC | 2,62 m² |
| Abstellraum | 2,95 m² |
| Flur | 11,56 m² |
| Gesamtwohnfläche | 82,77 m² |